Suwalska Specjalna Strefa Ekonomiczna SA | Polska Strefa Inwestycji

Suwalska Specjalna Strefa Ekonomiczna SA | Polska Strefa Inwestycji
BIP   Zwiększ kontrast strony |   Wielkość czcionki podstawowa Wielkość czcionki zwiększona Wielkość czcionki podwójna | Facebook Youtube LinkedIn Instagram | Wersja językowa polska | Wersja językowa angielska
Strona główna / Hala

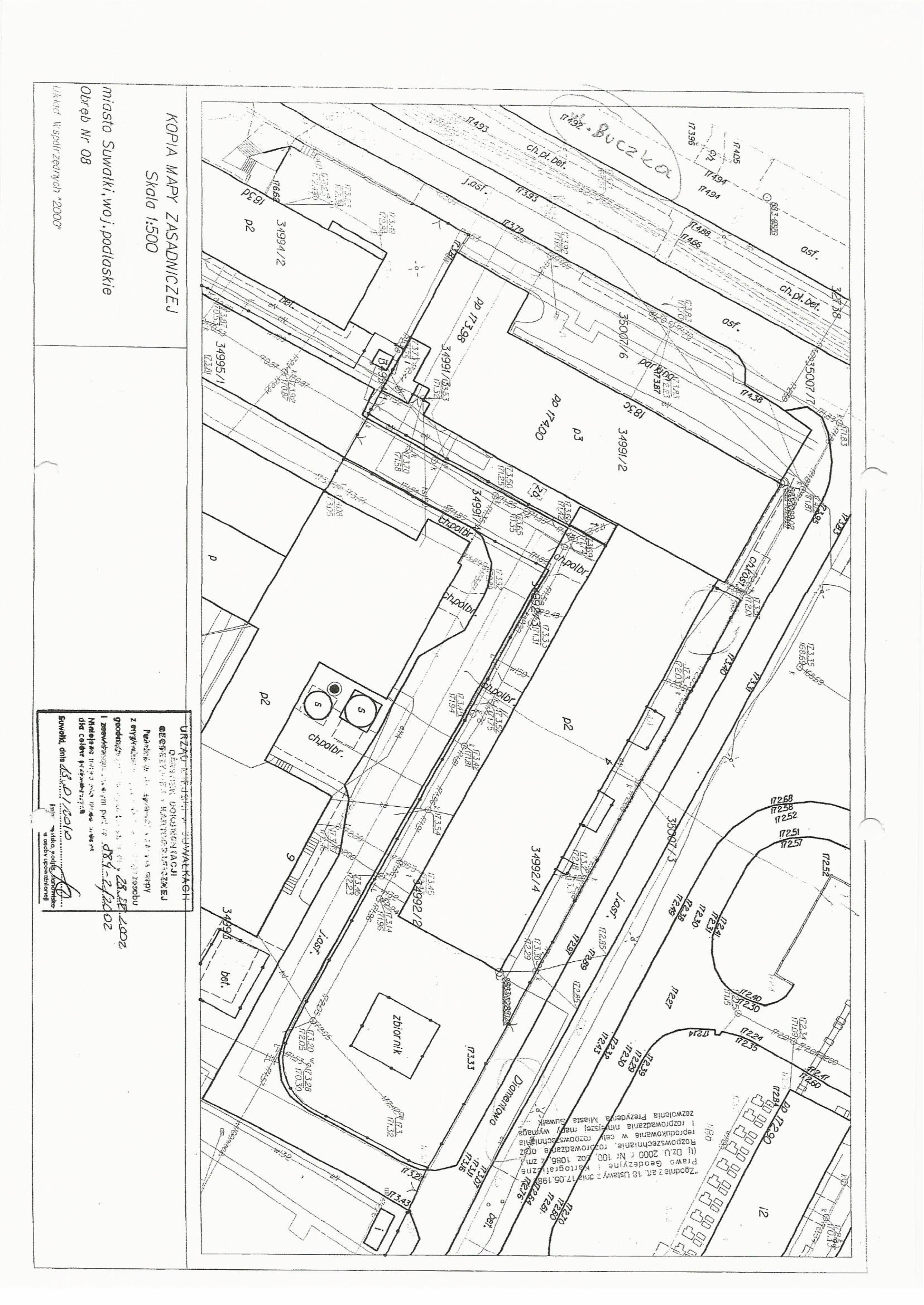
Suwałki, Hala produkcyjna o powierzchni 1059 m2 , ul. Diamentowa 4

Suwałki, Hala produkcyjna o powierzchni 1059 m2 ,  ul. Diamentowa 4

Położenie

Nazwa lokalizacjiHala produkcyjna ul. Diamentowa w Suwałkach
Miasto/GminaSUWAŁKI, DIAMENTOWA 4
WojewództwoPodlaskie

Właściciel

WłaścicielASPI SP. Z O.O. SP.K. www.p-aspi.pl

Podstawowe dane dotyczące hali produkcyjnej

Powierzchnia [m2]1059
Liczba kondygnacji1
Wysokość6,5 m
Rok modernizacji1998
Obecny stan technicznyŚredni / Standard
Całkowita powierzchnia terenu3624 m2
Powierzchnia użytkowa (nie dotyczy: powierzchni socjalnych i biurowych)

Połączenia transportowe

Najbliższe miasto wojewódzkie [km]133 km od Białegostoku

Infrastruktura

ElektrycznośćTak
WodaTak
GazTak
OgrzewanieTak
Kanalizacja / Sewage systemTak

Warunki nabycia

Własnośćprywatna Kontakt Stanisław Szyszkowski Aspi Sp. z o.o. sp. k.
Tel: (087) 563 13 80

Dodatkowe informacje

Dodatkowe informacjeNieruchomość zabudowana jest budynkiem produkcyjnym z zapleczem administracyjno-socjalnym o powierzchni użytkowej 1459,4m2, powierzchni zabudowy 1346m2. Część administracyjno-socjalna jest o dwóch kondygnacjach.

Kontakt

KontaktASPI SP. Z O.O. SP.K.
www.p-aspi.pl
kontakt Tel: (087) 563 13 80
Radosław Mroczkowski
Dyrektor Operacyjny / COO
tel. +48 600 872 808

Osoba przygotowująca ofertę

GALERIA

Suwałki, Hala produkcyjna o powierzchni 1059 m2 ,  ul. Diamentowa 4
Suwałki, Hala produkcyjna o powierzchni 1059 m2 ,  ul. Diamentowa 4
Suwałki, Hala produkcyjna o powierzchni 1059 m2 ,  ul. Diamentowa 4
Suwałki, Hala produkcyjna o powierzchni 1059 m2 ,  ul. Diamentowa 4
Suwałki, Hala produkcyjna o powierzchni 1059 m2 ,  ul. Diamentowa 4
Suwałki, Hala produkcyjna o powierzchni 1059 m2 ,  ul. Diamentowa 4
Suwałki, Hala produkcyjna o powierzchni 1059 m2 ,  ul. Diamentowa 4
Suwałki, Hala produkcyjna o powierzchni 1059 m2 ,  ul. Diamentowa 4